立即預約 立即預約
免費定制整裝家居

免費定制整裝家居

一站置家 全程無憂 一省到底
hide.png

當前位置: 首頁 > 裝修案例效果圖 > 中冶上和郡

中冶上和郡 96平 北歐風格效果圖

收藏
案例風格 北歐 案例戶型 二居 案例面積 96平米
樓盤名稱 中冶上和郡 設計師 林鳳裝飾設計師 案例類型 改善性住宅

設計理念:北歐簡約風格,猶如一封來自北歐的情書,文藝而又清新。

客廳
第1張
餐廳
第1張
臥室
第1張
第2張
衛(wèi)生間
第1張
廚房
第1張
書房
第1張
第2張
過廊
第1張
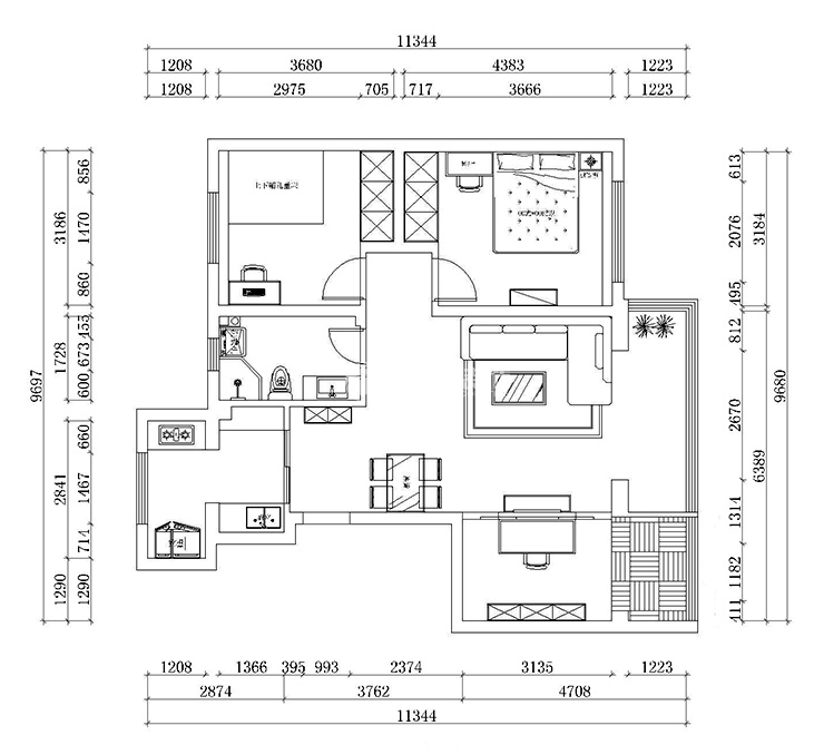
戶型圖
第1張
  • 案例詳情

中冶上和郡-96平-北歐風格-客廳1.jpg

墻面地面以淺灰色調(diào)為主,奠定了干凈的基調(diào),電視墻兩邊門的設計,既可以客廳與書房通透的感覺,也可以關上門作為客廳的電視背景墻 兩個區(qū)域互不耽誤。

中冶上和郡-96平-北歐風格-餐廳.jpg

餐區(qū)充分做到了空間與家具間的協(xié)調(diào),顏色與顏色間的交融。淺灰色的墻地搭配原木色的餐桌 錯亂的藝術掛畫,更顯整體空間的文藝感。

中冶上和郡-96平-北歐風格-臥室1.jpg 中冶上和郡-96平-北歐風格-主臥室2.jpg

主臥非常清爽,灰色墻面,藍色床品,營造出舒適的睡眠環(huán)境。

中冶上和郡-96平-北歐風格-衛(wèi)生間.jpg

衛(wèi)生間采用淺色系元素 搭配白色衛(wèi)浴,合理的空間布局讓使用更加方便。

中冶上和郡-96平-北歐風格-廚房.jpg

黑色面包磚與綠色花片地面的時尚搭配,讓原本大家都不喜歡進廚房做飯的人 會瞬間愛上這里,仿佛這里是用來享受的,并不是充滿了油煙的地方。

中冶上和郡-96平-北歐風格-書房.jpg 中冶上和郡-96平-北歐風格-書房2.jpg 中冶上和郡-96平-北歐風格-過廊1.jpg 中冶上和郡-96平-北歐風格-平面.jpg

案例設計師

林鳳裝飾設計師

設計師:林鳳裝飾設計師

從業(yè)時間:6年

設計理念:設計源于生活,生活因設計而改變。

預約設計師

算算你家裝修多少錢

報名即享豐厚贈品,享半價裝修

免費報價
咨詢熱線:400-656-9909
20190221103704574636.jpg

精品設計案例

20180612134930523248.jpg 服務號二維碼.jpg