立即預約 立即預約
免費定制整裝家居

免費定制整裝家居

一站置家 全程無憂 一省到底
hide.png

當前位置: 首頁 > 裝修案例效果圖 > 碧桂園繁華里

碧桂園繁華里 86平 現代簡約風格效果圖

收藏
案例風格 現代簡約 案例戶型 二居 案例面積 86平米
樓盤名稱 碧桂園繁華里 設計師 林鳳設計師 案例類型 改善性住宅

設計理念:本案是現代風格,最大的亮點在于將原有廚房打開,做成開敞廚房及餐廳,將空間的視覺效果做得盡量的開敞。本案主體顏色選用白色與灰色,僅衛(wèi)生間干區(qū)用玫紅色防水乳膠漆作為跳色,跳躍性的視覺感受。

客廳
第1張
第2張
第3張
餐廳
第1張
臥室
第1張
第2張
第3張
衛(wèi)生間
第1張
廚房
第1張
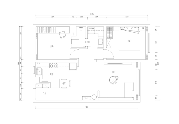
戶型圖
第1張
  • 案例詳情

碧桂園繁華里-86平-現代風格-首圖.jpg 碧桂園繁華里-86平-現代風格-客廳 (2).jpg 碧桂園繁華里-86平-現代風格-客廳.jpg

碧桂園繁華里86平2居室現代風格林鳳裝飾的客廳電視背景墻比較長,使得從主臥出來之后的過道光線很弱,顯得有些憋悶,所以將那部分墻體設計成一塊黑玻璃,不減少背景墻長度的同時,增加透光性和材質的多樣性。電視背景墻運用了立體構成的設計手法,打造一個造型簡潔又個性化的背景墻方案。

碧桂園繁華里-86平-現代風格-客餐廳.jpg

碧桂園繁華里86平2居室現代風格林鳳裝飾的餐廳由于女業(yè)主一人居住,所以不需要太大的餐桌,我將餐桌設置在櫥柜延伸出來的島臺上,減少了空間的浪費,增加了空間的趣味性。

碧桂園繁華里-86平-現代風格-臥室(1).jpg 碧桂園繁華里-86平-現代風格-臥室(2).jpg 碧桂園繁華里-86平-現代風格-臥室.jpg

碧桂園繁華里86平2居室現代風格林鳳裝飾的臥室用硬包裝飾床頭背景墻,增加舒適和溫馨的感覺,整個房間沒有設置大衣柜,減少壓抑感,使視覺更寬敞舒適。

碧桂園繁華里-86平-現代風格-衛(wèi)生間.jpg

衛(wèi)生間保留了原有的干濕分離的格局。干區(qū)沒有將瓷磚全部貼到頂,取而代之的是彰顯女性氣息的玫紅色防水乳膠漆。轉角臺面容納了滾筒洗衣機,使空線條干凈利落。碧桂園繁華里86平2居室現代風格林鳳裝飾的

碧桂園繁華里-86平-現代風格-廚房.jpg

碧桂園繁華里86平2居室現代風格林鳳裝飾的開敞廚房的設計最大化的延伸了客廳的視覺感受,減少了小戶型的局促感,冰箱與櫥柜的結合使空間整潔統(tǒng)一。白色烤漆門板彌補了北面采光不足的缺點。

戶型圖.jpg

案例設計師

林鳳設計師

設計師:林鳳設計師

從業(yè)時間:8年

設計理念:一切隨心,用心去感悟空間

預約設計師

算算你家裝修多少錢

報名即享豐厚贈品,享半價裝修

免費報價
咨詢熱線:400-656-9909
20190221103704574636.jpg

精品設計案例

20180612134930523248.jpg 服務號二維碼.jpg