立即預約
免費定制整裝家居
一站置家 全程無憂 一省到底
設計理念:設計師整體設計理念:輕法式風格具有厚重的歷史文化底蘊,因此其裝修具有沉穩(wěn)、厚重、休閑等特點,傳統(tǒng)法式建筑推崇優(yōu)雅、高貴和浪漫,追求建筑的詩意、詩境,力求在氣質上給人深度的感染,風格也偏于莊重大方,如果說傳統(tǒng)法式更強調金碧輝煌的貴族范兒,那輕法式的精髓則在于不拘一格,輕法式一方面保留了法式風格材質、色彩的特點,沿襲了傳統(tǒng)法式的優(yōu)雅與高貴氣息,同時又摒棄了傳統(tǒng)意義上的奢華——過于復雜的肌理和裝飾,簡化線條,返璞歸真。透露著幾分靈動清新之感,使家變得浪漫、優(yōu)雅、舒適、自在。
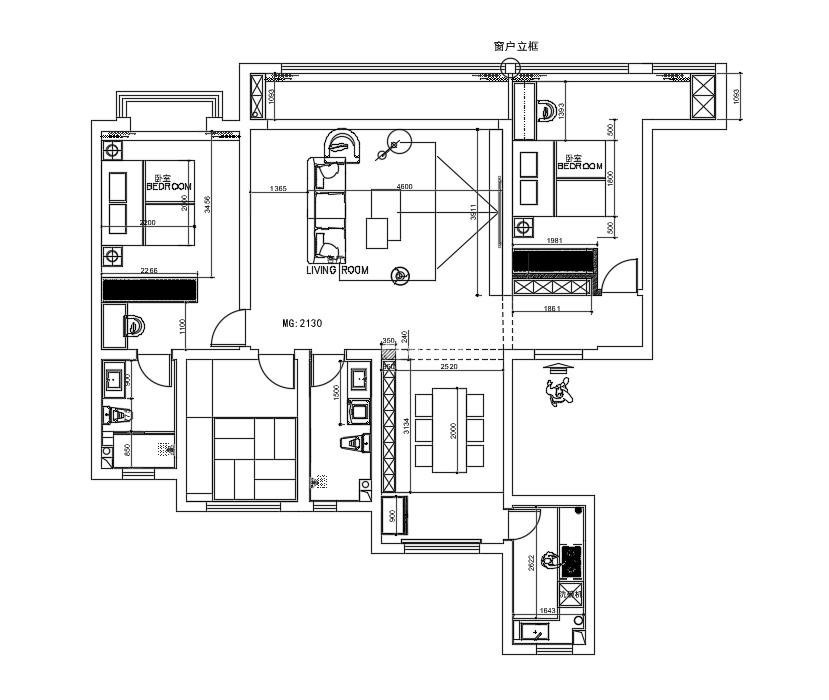
客廳說明:在一個家庭中,客廳是連接內外和溝通客主情感的主要場所,利用頻率較高,所以在空間上也相對比較大。所以采用以白色為主,大肆運用白色,使整個空間典雅、大方。在布局上,將陽臺打通后融入客廳,保證了采光和活動空間。大大的落地窗將室外美景盡收眼底,與室內調和的綠色墻面裝飾相映成趣,恰到好處。
餐廳說明:在簡潔、干凈的背景下,餐廳卡座和充滿法式風情的餐椅相得益彰,搭配精致吊燈,滿眼的精致感,無形之中彰顯高品質的生活態(tài)度。
臥室說明:主臥用白色為基調,呈現著一片潔凈雅致之感。作為業(yè)主最常使用的主臥私區(qū),融入了衣帽間、衛(wèi)浴間的設計,采用一些粉色、和金屬元素,營造出更為柔和細膩、溫馨浪漫的感覺。
衛(wèi)生間說明:兼顧“顏值”的同時,衛(wèi)生間采用了干濕分區(qū)的設計,一家人生活的時候,互不打擾。無形之中提升了空間的利用率,讓日常生活更為便捷、舒適。又充滿暖意,衛(wèi)生間主要選取自由隨意的元素,所以在設計中的時候都有很多技巧,簡美式衛(wèi)生間顏色比較簡約大方,在低調中又不失時尚的色彩。
廚房說明: 采用白色為主,再搭配上法師風格的櫥柜,增加藝術氛圍,輕法式廚房明亮溫馨,既寬敞又不失底蘊,地磚顏色與整體顏色搭配使人眼前舒暢。
精品設計案例
設計說明:
三室兩廳一廚兩衛(wèi),高層整體采用美式風格,色調以深色為主,體現美式的居家感和溫馨感。
設計說明:
本案業(yè)主為年輕時尚小兩口,所以我們考慮到未來想要給未來寶寶一個溫馨舒適的一個房間,所以本案整體采用現代風格的手法,運用顏色,來打造整體空間的設計感及時尚感
設計說明:
本案以北歐風格為主題的設計,北歐風格能以現代、簡潔、自然的特點俘獲人心,所營造出來的生活氛圍會讓人倍感舒適與自在。
設計說明:
客戶是一名成功人士,對于家的執(zhí)念就是簡單干凈,客戶衣服比較多,所以把每個空間都做了大衣柜,并且融入到設計里