立即預約 立即預約
免費定制整裝家居

免費定制整裝家居

一站置家 全程無憂 一省到底
hide.png

當前位置: 首頁 > 裝修案例效果圖 > 格林生活坊|現代風格

格林生活坊|現代風格 95平 現代簡約風格效果圖

收藏
案例風格 現代簡約 案例戶型 二居 案例面積 95平米
樓盤名稱 格林生活坊 設計師 李晶 案例類型 改善性住宅

設計理念:整體空間硬裝,簡單干凈直爽
軟裝溫柔,質感細膩高級
軟硬裝相互協(xié)調,色調統(tǒng)一

客廳
第1張
第2張
第3張
餐廳
第1張
臥室
第1張
第2張
第3張
第4張
衛(wèi)生間
第1張
廚房
第1張
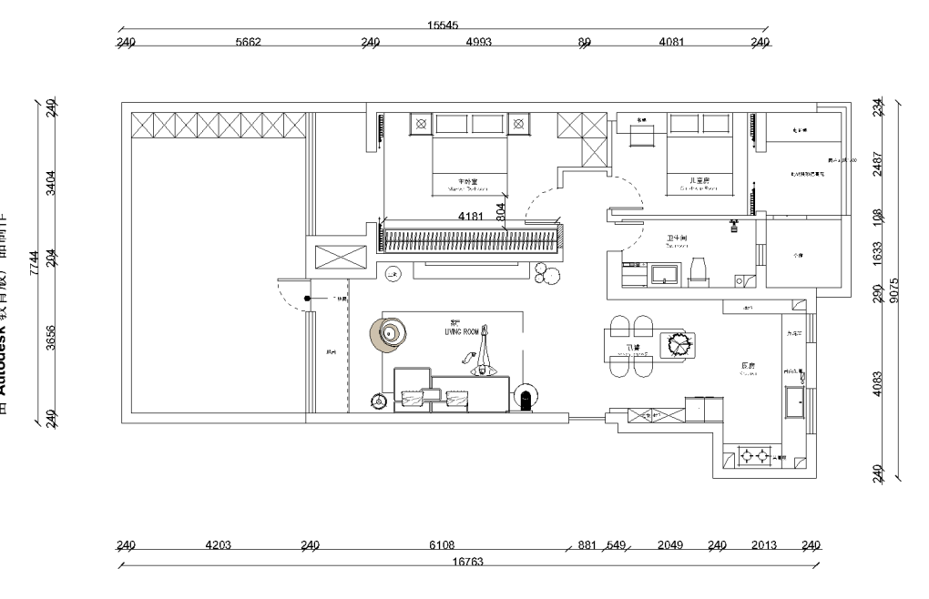
戶型圖
第1張
格林生活坊95㎡ 現代風格 客廳2.jpg 格林生活坊95㎡ 現代風格 客廳.jpg 格林生活坊95㎡ 現代風格 客廳1.jpg

暖灰色亮光地磚配套深色家具,深淺搭配

格林生活坊95㎡ 現代風格 餐廳.jpg

滿足洗切炒的功能外,盡量儲物多一些,開放式廚房配色與客廳銜接

格林生活坊95㎡ 現代風格 主臥.jpg 格林生活坊95㎡ 現代風格 次臥.jpg 格林生活坊95㎡ 現代風格 次臥1.jpg 格林生活坊95㎡ 現代風格 主臥1.jpg

臥室套房形式,增加衣帽間功能

格林生活坊95㎡ 現代風格 衛(wèi)生間.jpg 格林生活坊95㎡ 現代風格 廚房.jpg 格林生活坊95㎡ 現代風格 平面圖.png

案例設計師

李晶

設計師:李晶

從業(yè)時間:8年

設計理念:以人為本,設計的是一種生活狀態(tài)。

預約設計師

算算你家裝修多少錢

報名即享豐厚贈品,享半價裝修

免費報價
咨詢熱線:400-656-9909
20190221103704574636.jpg

精品設計案例

20180612134930523248.jpg 服務號二維碼.jpg