立即預約 立即預約
免費定制整裝家居

免費定制整裝家居

一站置家 全程無憂 一省到底
hide.png

當前位置: 首頁 > 裝修案例效果圖 > 天壇小區(qū)

天壇小區(qū) 140平 現代簡約風格效果圖

收藏
案例風格 現代簡約 案例戶型 三居 案例面積 140平米
樓盤名稱 天壇小區(qū) 設計師 林鳳裝飾設計師 案例類型 舊房改造

設計理念:現代中式風格的裝修風格迎合了年輕人的喜愛,都市忙碌生活,早已經讓我們煩膩了花天酒地,燈紅酒綠,我們更喜歡的一個安靜,祥和,看上去明朗寬敞舒適的家,來消除工作的疲憊,忘卻都市的喧鬧。這也是現在流行的裝修風格之一:現代中式風格。

客廳
第1張
第2張
第3張
第4張
餐廳
第1張
第2張
衛(wèi)生間
第1張
第2張
廚房
第1張
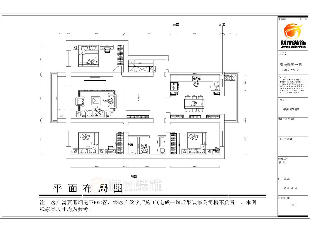
戶型圖
第1張
  • 案例詳情

天壇小區(qū)-現代風格-140平-客廳03.jpg 天壇小區(qū)-現代風格-140平-客廳.jpg 天壇小區(qū)-現代風格-140平-客廳01.jpg 天壇小區(qū)-現代風格-140平-客廳02.jpg

客廳是整個空間的重點,客廳的背景墻我們沒有選用復雜的造型.簡簡單單的壁紙?zhí)嵘臻g感.顯的格外的通透.有高度的視覺感.

天壇小區(qū)-現代風格-140平-餐廳.jpg 天壇小區(qū)-現代風格-140平-餐廳02.jpg

餐廳雖然是吃飯的地方,簡單的酒柜搭配簡單的造型棚讓空間更活躍而且還有高雅的氣息。

天壇小區(qū)-現代風格-140平-衛(wèi)生間01.jpg 天壇小區(qū)-現代風格-140平-衛(wèi)生間.jpg

衛(wèi)生間是每個家庭的重中之重,干濕分離.在墻面瓷磚的選擇上用米灰色,延續(xù)了風格的特點,簡結的衛(wèi)生間提升到高貴的頂點。

天壇小區(qū)-現代風格-140平-廚房.jpg

廚房墻面運用了仿理石瓷磚、大氣.時尚,也讓人看起來放松舒適又大氣。

天壇小區(qū)-現代風格-140平-戶型圖.jpg

案例設計師

林鳳裝飾設計師

設計師:林鳳裝飾設計師

從業(yè)時間:8年

設計理念:設計是一種感受.一種心態(tài)

預約設計師

算算你家裝修多少錢

報名即享豐厚贈品,享半價裝修

免費報價
咨詢熱線:400-656-9909
20190221103704574636.jpg

精品設計案例

20180612134930523248.jpg 服務號二維碼.jpg