立即預約 立即預約
免費定制整裝家居

免費定制整裝家居

一站置家 全程無憂 一省到底
hide.png

當前位置: 首頁 > 裝修案例效果圖 > 聽雨觀瀾

聽雨觀瀾 118平 現代簡約風格效果圖

收藏
案例風格 現代簡約 案例戶型 三居 案例面積 118平米
樓盤名稱 聽雨觀瀾 設計師 林鳳裝飾設計師 案例類型 改善性住宅

設計理念:業(yè)主是年輕的一家三口,日本人,喜歡比較簡單干凈的風格,孩子較小,所以除了環(huán)保外還要考慮可能會影響孩子的生活環(huán)境。

客廳
第1張
餐廳
第1張
第2張
第3張
臥室
第1張
第2張
衛(wèi)生間
第1張
廚房
第1張
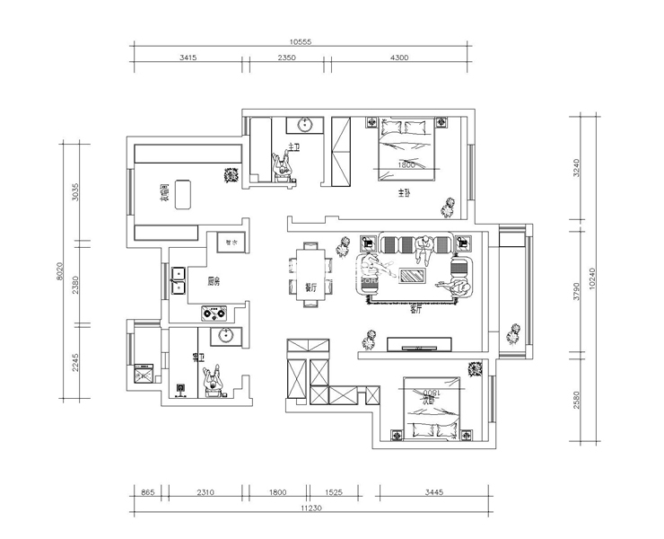
戶型圖
第1張
  • 案例詳情

聽雨觀瀾-118平-現代風格-客廳.jpg

客廳棚面主要用石膏板直線邊棚來做一個區(qū)域分割,電視背景墻無造型,干凈質樸,墻面盡通過幾幅現代畫來裝飾,現代畫要選用顏色比較豐富的畫,主要是考慮到孩子要從小培養(yǎng)顏色意識。

聽雨觀瀾-118平-現代風格-餐廳.jpg 聽雨觀瀾-118平-現代風格-餐廳2.jpg 聽雨觀瀾-118平-現代風格-客餐廳.jpg

餐廳搭配的餐桌比較簡單,但是配以鮮艷的綠植,使得空間多了一絲生機與俏皮。

聽雨觀瀾-118平-現代風格-次臥.jpg 聽雨觀瀾-118平-現代風格-主臥.jpg

主臥室的床現代感比較強,床頭背景不宜太過復雜選用硅藻泥簡單涂飾,現代感十足,顏色較淺,使得空間更為明亮,大大的增加了舒適度。

聽雨觀瀾-118平-現代風格-次衛(wèi).jpg

衛(wèi)生間地面的磚比較個性,色彩比較豐富,墻面干凈整潔,獨立洗衣房與浴室之間用浴屏做間隔,明亮通透,方便后期排除潮氣,洗手盆為整體化大臺面,方便使用,兩側空間較大。

聽雨觀瀾-118平-現代風格-廚房.jpg

廚房的墻磚以白色理石紋理的釉面磚為主,干凈整潔,讓這個空間光線更好,同時方便后期打理,櫥柜柜門也是比較具有現代感的板材飾面,古樸自然,個性十足。

聽雨觀瀾-118平-現代風格-平面.jpg

案例設計師

林鳳裝飾設計師

設計師:林鳳裝飾設計師

從業(yè)時間:6年

設計理念:適合才是最重要的,在適合的同時打造獨一無二

預約設計師

算算你家裝修多少錢

報名即享豐厚贈品,享半價裝修

免費報價
咨詢熱線:400-656-9909
20190221103704574636.jpg

精品設計案例

20180612134930523248.jpg 服務號二維碼.jpg