立即預約 立即預約
免費定制整裝家居

免費定制整裝家居

一站置家 全程無憂 一省到底
hide.png

當前位置: 首頁 > 裝修案例效果圖 > 御景新世界

御景新世界 88平 現代簡約風格效果圖

收藏
案例風格 現代簡約 案例戶型 二居 案例面積 88平米
樓盤名稱 御景新世界 設計師 林鳳設計師 案例類型 改善性住宅

設計理念:本案設計整體以淺色系為主線,為業(yè)主打造一個時尚溫馨的家。相信每個人心中都有自己對時尚的定義。家,舒適,這就是我認為的時尚,舒適,愜意,輕松,實用的“愛巢”

客廳
第1張
第2張
餐廳
第1張
臥室
第1張
衛(wèi)生間
第1張
廚房
第1張
門廳
第1張
過廊
第1張
第2張
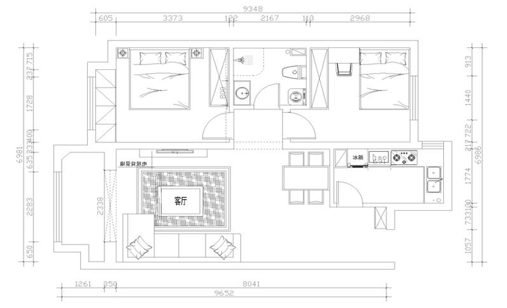
戶型圖
第1張
  • 案例詳情

御景新世界-88㎡-現代簡約風格-客廳.jpg 御景新世界-88㎡-現代簡約風格-客廳1.jpg

簡潔明快的客廳讓人心情愉悅,棚面和形象墻均采用直線條裝飾,既干凈整潔又互相呼應,配合黑鏡材質,有拉伸了整體空間的寬度。

御景新世界-88㎡-現代簡約風格-餐廳.jpg

通透的餐廳讓人眼前一亮,頂面延續(xù)客廳的直線棚面,造型簡潔的燈具是這個空間的亮點,呼應主題。

御景新世界-88㎡-現代簡約風格-主臥.jpg

舒適的臥室緩解一天忙碌工作帶來的疲倦,柔軟的大床伴你度過每個美好的夜晚。

御景新世界-88㎡-現代簡約風格-衛(wèi)生間.jpg

衛(wèi)生間采用拼色磚進行搭配,區(qū)域劃分明顯,整體簡潔大氣,以自我為中心,我舒服我實用。

御景新世界-88㎡-現代簡約風格-廚房.jpg

紅色的櫥柜配以暖色瓷磚讓女主人在烹飪過程中會放松身心,也給這個剛剛建立的小家庭鴻運當頭的美好寓意,日子過得是紅紅火火。

御景新世界-88㎡-現代簡約風格-門廳.jpg 御景新世界-88㎡-現代簡約風格-過廊.jpg 御景新世界-88㎡-現代簡約風格-過廊1.jpg 御景新世界-88㎡-現代簡約風格-平面.jpg

案例設計師

林鳳設計師

設計師:林鳳設計師

從業(yè)時間:7年

設計理念:設計源于生活,生活映與本性

預約設計師

算算你家裝修多少錢

報名即享豐厚贈品,享半價裝修

免費報價
咨詢熱線:400-656-9909
20190221103704574636.jpg

精品設計案例

20180612134930523248.jpg 服務號二維碼.jpg